■当ブログの…
三田用水研究: 明治初期の三田用水路 (mitaditch.blogspot.com)
の末尾近くで触れた目黒通りの旧白金御料地、現・自然教育園向かいの妙圓寺前の水路。
そこで採り上げた、玉川・神田両上水平面図
https://www.ro-da.jp/suidorekishida/content/detail/K0268自体、同ページに書いたように、謎が多い記載なのだが、
いずれにしても、妙円寺から南は、今でも行ってみるとわかるが、これが都内か?と思うほど深い谷であり、水路は、それを北方向に大きく迂回する形で設ける必要がある。
【参考資料】
![]() |
| 内務省地理局『東京実測全図』(M20)4幀の1抜粋 |
| 妙圓寺脇分水最上部 |
| 妙圓寺脇分水最下部 |
| 妙圓寺脇分水最底部附近から北方の妙圓寺方向を見上げる 中央部上方のケヤキの向こうが同寺の本堂と思われる |
この場所の水路は、さらに、絵地図などによって、かなり違った記載がなされている。
【暫定公開】
それぞれに解釈が難しく、なかなか「これは、こうです」といった断定ができないので、とりあえず、画像を並べておいて、徐々に解説を付記してゆくことにする
それぞれに解釈が難しく、なかなか「これは、こうです」といった断定ができないので、とりあえず、画像を並べておいて、徐々に解説を付記してゆくことにする
■まずは…
細川上水と三田上水が並行して流れていた
寛文4(1664)~享保7(1722)年
の絵地図
外側を大回りしているのが細川上水、内側が三田上水である。
次葉の絵図面とちがって、上流側は開渠(白掘)と、板を敷並べた橋で目黒道を渡り、道の北側で折り返しで暗渠か土橋で再び目黒道を渡っている。
目黒道北側の松平讃岐守の下屋敷内(次図参照)を水路が通っている可能性があるが、大名屋敷内を上水路や用水路が通過することは珍しいことではなく*、神田上水は、本水路が小石川の水戸徳川家の上屋敷を通過しているし、三田用水の神山分水は現渋谷区松濤の紀伊徳川家の下屋敷を通過している。
*実は、これはここ5年ほどの研究課題なのだが、上水や用水のための水路を設けたいとの要請のあるとき、土地の領主や利用(所持)者は、そのために利用できなくなる土地についての代償措置を求めることはできるものの、水路を設けること自体を全面的に拒絶することはできなかったようなのである。上水は、人の生命を維持するために不可欠な呑水などの生活用水の供給源だし、(農業)用水は、当時のいわば「米本位社会」の基本インフラなのだからいわば当然で、今、かつて読んだ文献を探し直しているとことろだが、これは、中世期から始まったといわれているものの、律令時代の行基による新田開発なども考えると、もっとはるか昔にさかのぼる、我国の根源的なルールなのかもしれない。
![]() |
| 国会図書館・蔵 玉川上水大絵図(NDLID:2589442)抜粋 180度転回 |
いわゆる貞享上水図の抜粋と思われる絵図。
前図に比べると、いわば進化した水路の設計となっている。
退色が激しいので、画像調整をしてはみたものの判読が難しいが、
三田上水は、目黒道の南縁で、おそらく開渠のまま折り返しており
細川上水は、3つの桝形を使って水位を調整しながら目黒道北縁で水路を折り返している
ようである。
■次は…
三田用水時代、つまり
享保9(1724)年以降
であるが、残念ながら、この時期の水路を描いた絵地図の類は未だに発見できていない。というか、有るにはあるが、概念図の域を出ていない。
その一つといえるのが、図法からみて、幕府普請方作成の沿革圖書系統に属する
「天保十三年寅年五月之形
麻布新堀河ヨリ品川目黒マデ絵図」(1842年)
がある。
![]() |
| NdlId:2542289 |
この図によれば、三田用水路が目黒道の下部で折り返しているらしいことはわかるが、それ以上の水路の詳細はわからない。
しかし、この時代の、この場所の三田用水路の姿を推測する手掛かりとなる史料として
寛政9(1787)年11月の
「御料・御霊屋料・私領・寺領拾四ケ村組合三田用水路白樋埋樋桝形分水口御普請出來形帳」(品川町史・中巻 pp.488-501)
という、同年幕府の費用で行われた(「御普請」)、三田用水路からの分水口などの改修工事のいわば会計報告書がある。
この工事の際、他の分水口と同時に行われた、この地の埋樋や桝形などの更新工事の記録には、それらの仕様が、以下のようにかなり細かく報告されている。
![]() |
| 品川町史・中巻 p.492 |
桝形を3つ*設けているほか、埋樋1か所、白樋(上部が開放された、U字溝のような形状の木造の水路)2か所が設けられ、前図の細川上水と同じような水路設計のように思われる。
*東京府志料によれば、明治5年当時の、ここの水路の桝形は4か所とされている。
![]() |
| 江戸名所図会・第7巻 天保5-7 [1834-1836] |
出版時期を基準にすると、前掲の出来形帳から約50年後のこの地の姿ということになる。
■明治期には…
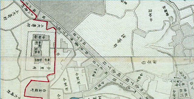
![]() |
| 玉川・神田両上水平面図 天保5-7 [1834-1836]年 東京都水道局・蔵 180度転回 |
【追記】
おそらく同じベースと思われる、より鮮明な地図があった
![]() |
| 国立公文書館・蔵「東京府郡区境界ヲ変更ス」M22 抜粋+画像調整 |
■昭和期の最終形
昭和27年に、法律(土地改良法)の規定にしたがって解散となった三田用水普通水利組合は、清算手続きに入り、昭和59年9月末日に同手続きが終了した。
いわゆる「三田用水事件」の最高裁判決を経て、組合の所有地であることが確定した水路敷の土地は、原則として、宅地についてはその使用者に売却され、道路として使用されていた部分については、道路管理者に移管されたのであるが、その移管部分は、測量図上茶色に塗って示されている。
上図によれば、水路は、目黒通りの南端(測量された昭和55年当時)から、約3~4メートルの位置から、1.3メートルほどの幅で道路に並行して通過していたことになる。
現況では目黒通りの幅員は16.36メートルなので、目黒駅方向への第2車線の南縁あたりに該ることになる。
拡幅の記録を調べる必要はあるが、現状になる拡幅前は、この水路が道路外にあった可能性も高いように思われる。
■もっとも…
この地籍測量図を見てわかったのだが、とくに明治期以降は、このいわば法律上の水路敷と、実際の水路の位置が一致していない場所があることに留意する必要がある。
その典型例は、目黒の防衛装備研究所の敷地内であり、ここは、明治13年に、当時帝国海軍の火薬製造所を設けるために、それまでの自然地形を反映した略S字型に流れていた水路を、当初懸樋を使用して直線状に改修した(その後、逆サイフォンで地中を通した)が、水利組合の所有地は明治13年以前のままの位置にあった。
もう1か所は、旧山手通りの西郷橋あたりからヒルサイドテラスのD棟あたりまでの区間で、昭和初期に、山手通りの西端を通るように改修されたが、組合の所有地はそれ従前のまま、変更がなかった。









0 件のコメント:
コメントを投稿